Deprecated: mysql_connect(): The mysql extension is deprecated and will be removed in the future: use mysqli or PDO instead in /home/j6o3k09394e3/public_html/DBAccess/Database2.inc.php on line 78

Deprecated: mysql_connect(): The mysql extension is deprecated and will be removed in the future: use mysqli or PDO instead in /home/j6o3k09394e3/public_html/DBAccess/Database2.inc.php on line 78
Kibler & Kibler Architecture and Engineering | Redding, CA

Photo Gallery

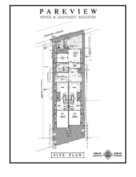
  Home Photo Gallery Residential Parkview Apartments & Office
Medical
Professional
Commercial/Retail
Restaurants
Residential
Structural
Planning
Description Thumbnails

Low-Income and City-Infill Housing Project for a local non-profit organization. Apartments feature two townhouse apartment units, each with 1,715 sq. ft. 4-bedroom, 2.5-bathroom with an attached single-car garage. Non-profit organization office featured an 1,100 sq. ft. single-story office building, located on the same City-Infill parcel as the apartment units.