Deprecated: mysql_connect(): The mysql extension is deprecated and will be removed in the future: use mysqli or PDO instead in /home/j6o3k09394e3/public_html/DBAccess/Database2.inc.php on line 78

Deprecated: mysql_connect(): The mysql extension is deprecated and will be removed in the future: use mysqli or PDO instead in /home/j6o3k09394e3/public_html/DBAccess/Database2.inc.php on line 78
Kibler & Kibler Architecture and Engineering | Redding, CA

Photo Gallery

  Home Photo Gallery Professional Bethel Administration Offices - Lake Blvd.
Medical
Professional
Commercial/Retail
Restaurants
Residential
Structural
Planning
Description Thumbnails

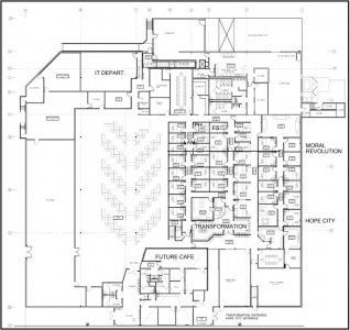
Renovation of an existing 38,112 sq. ft. Call Center building and a Second Floor addition of 12,238 sq. ft. for Bethel Administration Offices.  The new facility includes several departments such as Transformation, Hope City, Moral Revolution, LAM, Global Legacy, Curriculum and GTI.

 

No Photos Available