Deprecated: mysql_connect(): The mysql extension is deprecated and will be removed in the future: use mysqli or PDO instead in /home/j6o3k09394e3/public_html/DBAccess/Database2.inc.php on line 78

Deprecated: mysql_connect(): The mysql extension is deprecated and will be removed in the future: use mysqli or PDO instead in /home/j6o3k09394e3/public_html/DBAccess/Database2.inc.php on line 78
Kibler & Kibler Architecture and Engineering | Redding, CA

Photo Gallery

  Home Photo Gallery Commercial/Retail Good News Rescue Mission Victory House
Medical
Professional
Commercial/Retail
Restaurants
Residential
Structural
Planning
Description Thumbnails

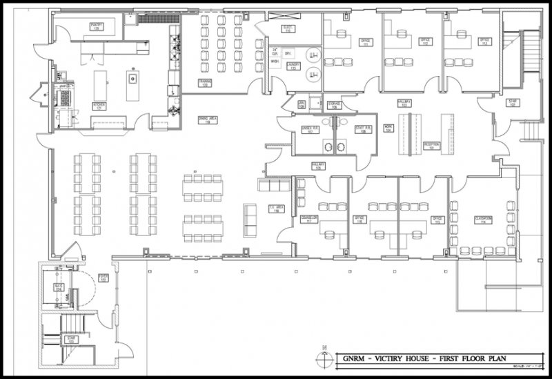
Complete renovation of an existing two-story building of approximately 10,300 sq. ft. for transitional housing. Building consists of a First Floor with Offices, Counseling Rooms, Classrooms, Commercial Kitchen & Dining Area, and a Second Floor with Dorm Rooms, Restrooms, and Laundry Room. The project also included an addition for an elevator and stairs.